- Характеристики
- Відгуків (0)
- Інструкція
Артикул
З кожного вашого замовлення відправляємо відсоток на потреби армії.Допомагаємо ЗСУ разом! Вперед до перемоги 🇺🇦
у менеджерів
у менеджерів
- Характеристики
- Відгуків (0)
- Інструкція
Твердопаливний котел Paskal (Паскаль) SL – котел для опалення приватних будинків, виробничих та побутових приміщень.
Режими роботи та управління
- Ручна подача палива через завантажувальні дверцята на колосникові грати.
- Тривалість горіння однієї закладки до 8 годин.
- Регулювання подачі повітря механічним регулятором тяги або автоматично за допомогою вентилятора і блока автоматики (опціонально).
- Підключення системи наддуву для оптимізації процесу горіння.
- Тепловіддача через двоходовий теплообмінник забезпечує високий ККД – до 81%.
Використовуване паливо
Котел Paskal SL універсальний і підтримує різні види твердого палива:
- Кам'яне вугілля марки "А" (антрацит) за стандартом ДСТУ 3472-96.
- Дрова з вологістю до 25% (поліни коротші за глибину топки).
- Дерев'яні або торф'яні брикети діаметром 10–15 см.
- Деревинні відходи (тріски, стружка, обрізки) з різними параметрами вологості.
Багатоточкова система подачі повітря під колосники забезпечує повне згоряння та стабільний ККД незалежно від виду палива.
Конструкція та будова котла
Котел Paskal SL має збірно-зварену конструкцію та складається з:
- Корпус котла з подвійними стінками та водяною оболонкою, що підвищує міцність та теплоємність.
- Велика камера згоряння (топка) для тривалого та ефективного горіння.
- Двоходовий теплообмінник над топкою для максимальної тепловіддачі.
- Повітряні форсунки під колосниками для рівномірного та повного згоряння палива.
- Дверцята для завантаження та ревізії котла.
- Патрубки для підведення та відведення теплоносія.
- Боров із вбудованим дросельним клапаном (шибером) та штуцер для запобіжного клапана.
- Монтажне місце для вентилятора нагнітання повітря під колосники для автоматичної роботи.
- Теплоізоляція корпусу та дверцят із високотемпературного матеріалу для зменшення тепловтрат.
Застосування
Paskal SL підходить для опалення:
- Приватних будинків.
- Виробничих та комерційних приміщень з системою центрального опалення.
- Технологічних об’єктів, де потрібне тривале і стабільне нагрівання.
Основні переваги котла Paskal SL
- Високий ККД – до 81% завдяки ефективному теплообміну.
- Можливість використання різних видів твердого палива.
- Надійна збірно-зварена конструкція з жароміцної сталі 6 мм.
- Велика камера згоряння та колосникові грати з водяною циркуляцією.
- Проста інтеграція з автоматикою та системою наддуву.
- Екологічність та низький рівень викидів.
- Безпечна та тривала експлуатація завдяки системам контролю тяги та запобіжним клапанам.
- Зручне обслуговування через ревізійні дверцята та доступ до теплообмінника.
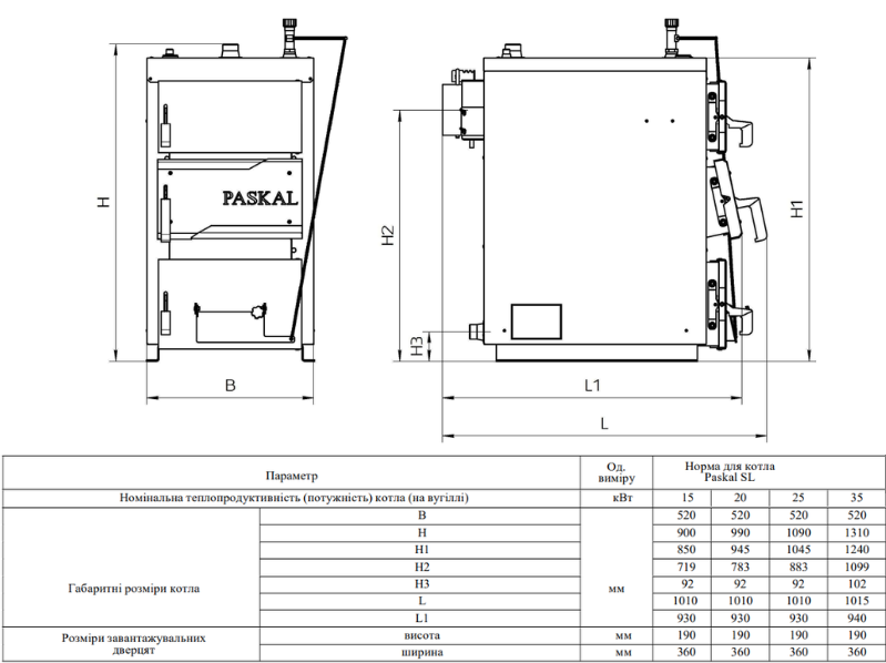
Розріз котла
Основні елементи
Габаритні розміри
Тут ви можете прочитати відгуки про товар або поділитися своїм фідбеком про нього
Способы оплаты
Наличная
Оплата наличными возможна только при покупке в Киеве или Киевской области, а также в наших представительствах в регионах Украины (уточняйте у менеджеров). Оплата производится исключительно в национальной валюте по курсу определенному на момент заказа.В подтверждение оплаты мы выдаем Вам товарный чек.
Безналичная
Оплата по безналичному расчету осуществляется следующим способом: после оформления заказа, менеджер магазина электронной почтой вышлет Вам счет- фактуру, который Вы сможете оплатить в кассе отделения любого банка или с расчетного счета Вашей фирмы. Для юридических лиц пакет всех необходимых документов предоставляется вместе с товаром.
Наложенным платежом службами доставки (Новая Почта, Интайм)
Оплата производится в отделении службы доставки наличным или безналичным расчетом после получения и проверки товара.
Способы оплаты
Мы можем доставить товар в Ваш город наиболее удобной для Вас службой перевозки, а именно Новая Почта, Интайм, Деливери, Мист Экспресс.
Стоимость доставки расчитывается согласно тарифам перевозчика, а также обговаривается индивидуально в зависимости от Вашего заказа.
При покупке на сумму от 10000 грн доставка по Украине Бесплатная
Підпишись на розсилку
Отримуйте останні новини
про акційні пропозиції на e-mail
* Оформляючи підписку ви даєте згоду на обробку персональних даних







