- Характеристики
- Відгуків (0)
Артикул
З кожного вашого замовлення відправляємо відсоток на потреби армії.Допомагаємо ЗСУ разом! Вперед до перемоги 🇺🇦
у менеджерів
у менеджерів
Виробник:
NEUS0 грн
- Характеристики
- Відгуків (0)
Теплоакумулятори NEUS ТА0 (0,90,180) без теплообмінника з теплоізоляцією забезпечують надійну роботу котельні, економлять паливо, підвищують ефективність роботи котла і забезпечують гарячою водою системи водопостачання та опалення.
Теплоаккумулятори NEUS - це вертикальні накопичувальні ємності, призначені для збереження і передачі теплової енергії (у вигляді води) в систему опалення. Можуть бути з'єднані з декількома контурами (теплові насоси, котли, сонячні батареї, системи опалення). Сенс їх використання полягає в згладжуванні піків теплоспоживання.
Виготовлення теплових акумуляторів NEUS проводиться на роботизованих лініях зі сталі високої якості товщиною до 4 мм. Якість зварних швів і надійність експлуатації перевіряється під тиском 6 МПа.
Теплоакумулятори NEUS працюють без нагляду і проблем при правильному монтажі і експлуатації. Перевагою їх використання є економія палива до 40%.
Особливості теплоаккумуляторов NEUS
- Висока якість зварювання
- Високоякісна сталь товщиною до 4 мм
- Доступна ціна
- Економія палива до 40%
- Забезпечують гарячою водою для опалення та гарячого водопостачання
- Гарантують безпечну роботу котельні
- Надійність
- Простота експлуатації
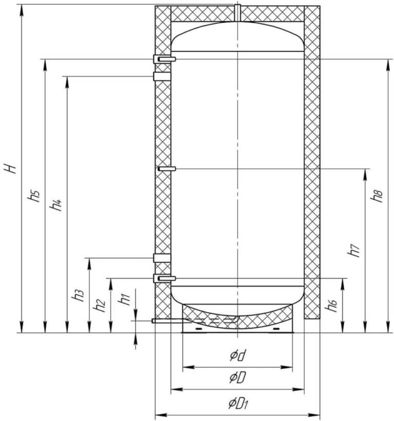
Схема і габаритні розміри теплових акумуляторів NEUS ТА0


Технічні характеристики |
||||||||||||||
|
Варіант виконання
|
Vбак, л
|
Габарити, мм | Приєднувальні розміри, мм |
Маса (без
води), кг |
||||||||||
| Н | Ød | ØD | ØD1 | h1 | h2 | h3 | h4 | h5 | h6 | h7 | h8 | |||
|
ТА0.200
|
200
|
1880 |
325
|
400
|
600
|
60 | 225 | 355 | 1515 | 1625 | 225 | 950 | 1625 |
78
|
| 1’’ | ¾’’ | 1 ½’’ | 1 ½’’ | 1 ½’’ | 1 ½’’ | ½’’ | ½’’ | ½’’ | ||||||
|
ТА0.320
|
320
|
1910 |
400
|
500
|
700
|
50 | 240 | 370 | 1530 | 1640 | 240 | 940 | 1640 |
100
|
| 1’’ | ¾’’ | 1 ½’’ | 1 ½’’ | 1 ½’’ | 1 ½’’ | ½’’ | ½’’ | ½’’ | ||||||
|
ТА0.500
|
480
|
1970 |
450
|
600
|
800
|
75 | 280 | 410 | 1570 | 1680 | 280 | 975 | 1680 |
124
|
| 1’’ | ¾’’ | 1 ½’’ | 1 ½’’ | 1 ½’’ | 1 ½’’ | ½’’ | ½’’ | ½’’ | ||||||
|
ТА0.800
|
780
|
2075 |
600
|
750
|
950
|
75 | 330 | 460 | 1620 | 1730 | 330 | 1030 | 1730 |
160
|
| 1’’ | ¾’’ | 1 ½’’ | 1 ½’’ | 1 ½’’ | 1 ½’’ | ½’’ | ½’’ | ½’’ | ||||||
|
ТА0.1000
|
990
|
2080 |
700
|
850
|
1050
|
75 | 330 | 460 | 1620 | 1730 | 330 | 1050 | 1730 |
185
|
| 1’’ | ¾’’ | 1 ½’’ | 1 ½’’ | 1 ½’’ | 1 ½’’ | ½’’ | ½’’ | ½’’ | ||||||
|
ТА0.1500
|
1440
|
2145 |
850
|
1000
|
1200
|
100 | 380 | 510 | 1670 | 1780 | 380 | 1080 | 1780 |
226
|
| 1’’ | ¾’’ | 1 ½’’ | 1 ½’’ | 1 ½’’ | 1 ½’’ | ½’’ | ½’’ | ½’’ | ||||||
|
ТА0.2000
|
2050
|
2235 |
1000
|
1200
|
1400
|
85 | 430 | 560 | 1720 | 1830 | 430 | 1125 | 1830 |
288
|
| 1’’ | ¾’’ | 2’’ | 2’’ | 2’’ | 2’’ | ½’’ | ½’’ | ½’’ | ||||||
|
ТА0.3000
|
2890
|
2315 |
1150
|
1400
|
1600
|
85 | 470 | 600 | 1760 | 1870 | 470 | 1170 | 1870 |
420
|
| 1’’ | ¾’’ | 2’’ | 2’’ | 2’’ | 2’’ | ½’’ | ½’’ | ½’’ | ||||||
|
ТА0.4000
|
3875
|
2400 |
1300
|
1600
|
1800
|
92 | 515 | 645 | 1805 | 1915 | 515 | 1215 | 1915 |
502
|
| 1’’ | ¾’’ | 2’’ | 2’’ | 2’’ | 2’’ | ½’’ | ½’’ | ½’’ | ||||||
|
ТА0.5000
|
4880
|
2900 |
1300
|
1600
|
1800
|
92 | 515 | 645 | 2305 | 2415 | 515 | 1465 | 2415 |
580
|
| 1’’ | ¾’’ | 2’’ | 2’’ | 2’’ | 2’’ | ½’’ | ½’’ | ½’’ | ||||||
|
ТА0.6000
|
5850
|
3400 |
1300
|
1600
|
1800
|
92 | 515 | 645 | 2805 | 2915 | 515 | 1715 | 2915 |
660
|
| 1’’ | ¾’’ | 3’’ | 3’’ | 3’’ | 3" | ½’’ | ½’’ | ½’’ | ||||||
|
ТА0.7000
|
6850
|
3900 |
1300
|
1600
|
1800
|
92 | 515 | 645 | 3305 | 3415 | 515 | 1965 | 3415 |
740
|
| 1’’ | ¾’’ | 3’’ | 3’’ | 3" | 3" | ½’’ | ½’’ | ½’’ | ||||||
|
ТА0.10000
|
9850
|
5370 |
1300
|
1600
|
1800
|
92 | 560 | 710 | 4710 | 4860 | 560 | 2730 | 4860 |
1010
|
| 1’’ | ¾’’ | 3’’ | 3’’ | 3" | 3" | ½’’ | ½’’ | ½’’ | ||||||

Технічні характеристики |
||||||||||||||
|
Варіант
виконання |
Vбак, л
|
Габарити, мм | Приєднувальні розміри, мм |
Маса (без
води), кг |
||||||||||
| Н | Ød | ØD | ØD1 | h1 | h2 | h3 | h4 | h5 | h6 | |||||
|
ТА0.200 90° та 180°
|
200
|
1880 |
325
|
400
|
600
|
225 | 1625 | 60 | 225 | 930 | 1625 |
78
|
||
| 1’’ | 1 ½’’ | 1 ½’’ | ¾’’ | ½’’ | ½’’ | ½’’ | ||||||||
|
ТА0.320 90°
та 180° |
320
|
1910 |
400
|
500
|
700
|
240 | 1640 | 50 | 240 | 940 | 1640 |
100
|
||
| 1’’ | 1 ½’’ | 1 ½’’ | ¾’’ | ½’’ | ½’’ | ½’’ | ||||||||
|
ТА0.500 90°
та 180° |
480
|
1970 |
450
|
600
|
800
|
280 | 1680 | 75 | 280 | 980 | 1680 |
124
|
||
| 1’’ | 1 ½’’ | 1 ½’’ | ¾’’ | ½’’ | ½’’ | ½’’ | ||||||||
|
ТА0.800 90°
та 180° |
780
|
2075 |
600
|
750
|
950
|
330 | 1730 | 75 | 330 | 1030 | 1730 |
160
|
||
| 1’’ | 1 ½’’ | 1 ½’’ | ¾’’ | ½’’ | ½’’ | ½’’ | ||||||||
|
ТА0.1000 90° та 180°
|
990
|
2080 |
700
|
850
|
1050
|
330 | 1730 | 75 | 330 | 1030 | 1730 |
185
|
||
| 1’’ | 1 ½’’ | 1 ½’’ | ¾’’ | ½’’ | ½’’ | ½’’ | ||||||||
|
ТА0.1500 90°
та 180° |
1440
|
2145 |
850
|
1000
|
1200
|
380 | 1780 | 100 | 380 | 1080 | 1780 |
226
|
||
| 1’’ | 1 ½’’ | 1 ½’’ | ¾’’ | ½’’ | ½’’ | ½’’ | ||||||||
|
ТА0.2000 90°
та 180° |
2050
|
2235 |
1000
|
1200
|
1400
|
430 | 1830 | 85 | 430 | 1130 | 1830 |
288
|
||
| 1’’ | 2’’ | 2’’ | ¾’’ | ½’’ | ½’’ | ½’’ | ||||||||
|
ТА0.3000 90°
та 180° |
2890
|
2315 |
1150
|
1400
|
1600
|
470 | 1870 | 85 | 470 | 1170 | 1870 |
420
|
||
| 1’’ | 2’’ | 2’’ | ¾’’ | ½’’ | ½’’ | ½’’ | ||||||||
|
ТА0.4000 90°
та 180° |
3875
|
2400 |
1300
|
1600
|
1800
|
515 | 1915 | 92 | 515 | 1215 | 1915 |
502
|
||
| 1’’ | 2’’ | 2’’ | ¾’’ | ½’’ | ½’’ | ½’’ | ||||||||
|
ТА0.5000 90°
та 180° |
4880
|
2900 |
1300
|
1600
|
1800
|
515 | 2415 | 92 | 515 | 1465 | 2415 |
580
|
||
| 1’’ | 2’’ | 2’’ | ¾’’ | ½’’ | ½’’ | ½’’ | ||||||||
|
ТА0.6000 90° та 180°
|
5850
|
3400 |
1300
|
1600
|
1800
|
515 | 2915 | 92 | 515 | 1715 | 2915 |
660
|
||
| 1’’ | 3’’ | 3’’ | ¾’’ | ½’’ | ½’’ | ½’’ | ||||||||
|
ТА0.7000 90° та 180°
|
6850
|
3900 |
1300
|
1600
|
1800
|
515 | 3415 | 92 | 515 | 1965 | 3415 |
740
|
||
| 1’’ | 3’’ | 3’’ | ¾’’ | ½’’ | ½’’ | ½’’ | ||||||||
|
ТА0.10000 90° та 180°
|
9850
|
5370 |
1300
|
1600
|
1800
|
560 | 4860 | 92 | 560 | 2730 | 4860 |
1010
|
||
| 1’’ | 3’’ | 3’’ | ¾’’ | ½’’ | ½’’ | ½’’ | ||||||||

Тут ви можете прочитати відгуки про товар або поділитися своїм фідбеком про нього
Способы оплаты
Наличная
Оплата наличными возможна только при покупке в Киеве или Киевской области, а также в наших представительствах в регионах Украины (уточняйте у менеджеров). Оплата производится исключительно в национальной валюте по курсу определенному на момент заказа.В подтверждение оплаты мы выдаем Вам товарный чек.
Безналичная
Оплата по безналичному расчету осуществляется следующим способом: после оформления заказа, менеджер магазина электронной почтой вышлет Вам счет- фактуру, который Вы сможете оплатить в кассе отделения любого банка или с расчетного счета Вашей фирмы. Для юридических лиц пакет всех необходимых документов предоставляется вместе с товаром.
Наложенным платежом службами доставки (Новая Почта, Интайм)
Оплата производится в отделении службы доставки наличным или безналичным расчетом после получения и проверки товара.
Способы оплаты
Мы можем доставить товар в Ваш город наиболее удобной для Вас службой перевозки, а именно Новая Почта, Интайм, Деливери, Мист Экспресс.
Стоимость доставки расчитывается согласно тарифам перевозчика, а также обговаривается индивидуально в зависимости от Вашего заказа.
При покупке на сумму от 10000 грн доставка по Украине Бесплатная
Підпишись на розсилку
Отримуйте останні новини
про акційні пропозиції на e-mail
* Оформляючи підписку ви даєте згоду на обробку персональних даних

