- Характеристики
- Відгуків (0)
Артикул kht-ps-01-800
З кожного вашого замовлення відправляємо відсоток на потреби армії.Допомагаємо ЗСУ разом! Вперед до перемоги 🇺🇦
у менеджерів
у менеджерів
Рекомендовані товари
0
Код: triynyk-reviziya-45-termo-no-08mm-aisi304-150-220
Трійник 45° з ревізією для димоходу Ø150/220мм двостінний нерж/оц марка сталі AISI 304 (Тов. м. 0,8мм)
-
Виробник:
ВЕНТ-УСТРІЙ
-
Діаметр:
від 100/160 мм
від 3 217 грн
0
Код: triynyk-reviziya-45-termo-no-1mm-aisi304-150-220
Трійник 45° з ревізією для димоходу Ø150/220мм двостінний нерж/оц марка сталі AISI 304 (Тов. м. 1мм)
-
Виробник:
ВЕНТ-УСТРІЙ
-
Діаметр:
від 100/160 мм
від 3 440 грн
- Характеристики
- Відгуків (0)
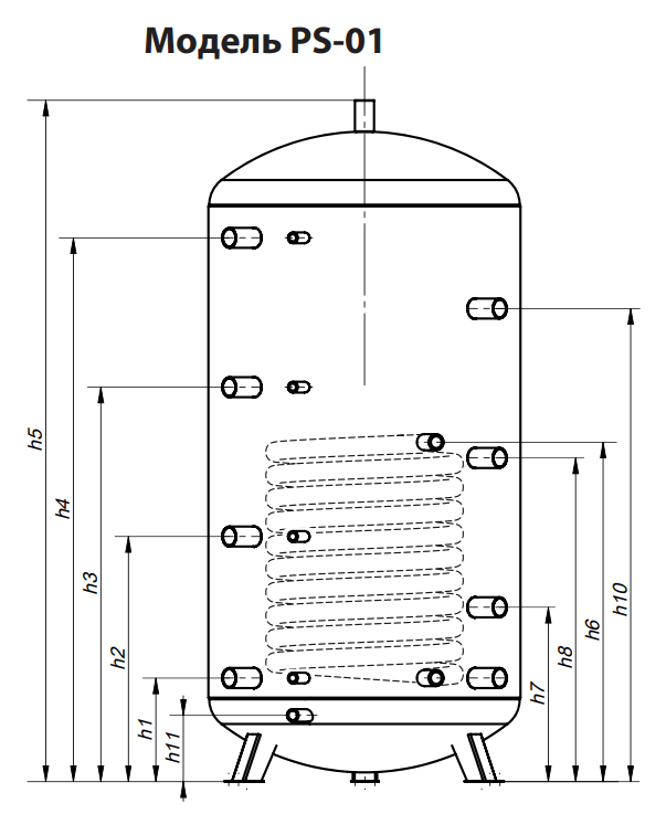
PS-01 - Акумуляційні ємності з нижнім чорним теплообмінником
Буферні ємності серії PS обсягом від 200 до 2000 л є невід'ємною частиною систем опалення. Ці ємності - це закриті резервуари, які можуть працювати під внутрішнім тиском теплоносія до 0,3 МПа, виготовлені з чорної сталі без внутрішнього покриття.
Модифікації буферних ємностей в знімній теплоізоляції KHT PS:
PS-00 - це акумуляційні ємності без теплообмінників;
PS-01 - це акумуляційні ємності з нижнім чорним теплообмінником;
PS-11 - це акумуляційні ємності з нижнім та верхнім чорним теплообмінниками
Схема KHT PS-01


| Основні характеристики | ||
|---|---|---|
| Бренд | KHT |
|
| Країна виробник | Україна |
|
| Форма | Кругла |
|
| Ізоляція | Ні |
|
| Кількість теплообмінників | 1 |
Технічні характеристики |
| Площа теплообміну | м² |
3,0 |
| Об'єм водонагрівача | л |
734 |
| Максимальна температура води | °С |
95 |
| Вага | кг |
123 |
| Максимальний робочий тиск води | МПа |
0,3 |
Габаритні розміри водонагрівача |
| Діаметр | мм |
790 |
| Висота | мм |
1734 |
Тут ви можете прочитати відгуки про товар або поділитися своїм фідбеком про нього
Способы оплаты
Наличная
Оплата наличными возможна только при покупке в Киеве или Киевской области, а также в наших представительствах в регионах Украины (уточняйте у менеджеров). Оплата производится исключительно в национальной валюте по курсу определенному на момент заказа.В подтверждение оплаты мы выдаем Вам товарный чек.
Безналичная
Оплата по безналичному расчету осуществляется следующим способом: после оформления заказа, менеджер магазина электронной почтой вышлет Вам счет- фактуру, который Вы сможете оплатить в кассе отделения любого банка или с расчетного счета Вашей фирмы. Для юридических лиц пакет всех необходимых документов предоставляется вместе с товаром.
Наложенным платежом службами доставки (Новая Почта, Интайм)
Оплата производится в отделении службы доставки наличным или безналичным расчетом после получения и проверки товара.
Способы оплаты
Мы можем доставить товар в Ваш город наиболее удобной для Вас службой перевозки, а именно Новая Почта, Интайм, Деливери, Мист Экспресс.
Стоимость доставки расчитывается согласно тарифам перевозчика, а также обговаривается индивидуально в зависимости от Вашего заказа.
При покупке на сумму от 10000 грн доставка по Украине Бесплатная
Підпишись на розсилку
Отримуйте останні новини
про акційні пропозиції на e-mail
* Оформляючи підписку ви даєте згоду на обробку персональних даних

