- Характеристики
- Відгуків (0)
Артикул
З кожного вашого замовлення відправляємо відсоток на потреби армії.Допомагаємо ЗСУ разом! Вперед до перемоги 🇺🇦
у менеджерів
у менеджерів
- Характеристики
- Відгуків (0)
Пелетні котли Біопром MG спеціально розроблені для спалювання пелет низької якості.
Відвід продуктів горіння відбувається через чотирьохканальну систему, теплообмінник скомпонований вертикально. Система відводу оснащена зйомними турбулізаторами. Вертикальне розташування теплообмінника забезпечує високу ефективність роботи котла, а також призводить до зменшення забрудненнями продуктами згоряння.
В топці котла є керамічна панель, що відіграє роль каталізатора і позитивно впливає на ефективність процесу горіння палива. Таким чином, досягається якісне повне згоряння пелет і збільшується ККД. Одночасно з цим, така керамічна панель виступає в ролі відбійника, що відбиває полум’я, що поступає з факельного пальника. Таким чином основне термічне навантаження приходиться на задню стінку котла.
Чистка котла проводиться не частіше 1 разу в 7 днів.
Правильний розподіл первинного і вторинного повітря забезпечує ефективне спалення резервного палива (дрова, брикет, вугілля). Охолоджувальні колосники і аераційні сопла виконані з цільностягнутих товстостінних труб.
Особливості котлів на пелетах Біопром MG
- Автоматична подача палива
- Мультифункціональний і енергоефективний теплообмінник
- Факельний пальник
- Керамічна топка
- ККД 90-92%
- Можна використовувати пелети низької якості
- Висока тривалість горіння на одному завантаженні
- Низький рівень викидів в атмосферу
- Низький рівень утворення смолистих відкладень на стінках котла
- Легка експлуатація і обслуговування
- Розбірний бункер
- Бункер оснащений органайзером для інструментів
- Мікропроцесорний контролер
- Компактність
- Сучасний дизайн
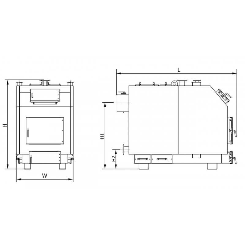
Схема пелетного котла Біопром MG

Тут ви можете прочитати відгуки про товар або поділитися своїм фідбеком про нього
Способы оплаты
Наличная
Оплата наличными возможна только при покупке в Киеве или Киевской области, а также в наших представительствах в регионах Украины (уточняйте у менеджеров). Оплата производится исключительно в национальной валюте по курсу определенному на момент заказа.В подтверждение оплаты мы выдаем Вам товарный чек.
Безналичная
Оплата по безналичному расчету осуществляется следующим способом: после оформления заказа, менеджер магазина электронной почтой вышлет Вам счет- фактуру, который Вы сможете оплатить в кассе отделения любого банка или с расчетного счета Вашей фирмы. Для юридических лиц пакет всех необходимых документов предоставляется вместе с товаром.
Наложенным платежом службами доставки (Новая Почта, Интайм)
Оплата производится в отделении службы доставки наличным или безналичным расчетом после получения и проверки товара.
Способы оплаты
Мы можем доставить товар в Ваш город наиболее удобной для Вас службой перевозки, а именно Новая Почта, Интайм, Деливери, Мист Экспресс.
Стоимость доставки расчитывается согласно тарифам перевозчика, а также обговаривается индивидуально в зависимости от Вашего заказа.
При покупке на сумму от 10000 грн доставка по Украине Бесплатная
Підпишись на розсилку
Отримуйте останні новини
про акційні пропозиції на e-mail
* Оформляючи підписку ви даєте згоду на обробку персональних даних



